Funäsdalen

Morgondoppet 3 B

Dags för ditt livs äventyr i Funäsdalen?

Just nu byggs 11 bostäder i två etapper nära Funäsdalssjöns östra kant. Husen byggs som åretruntboenden med hög standard och säljs som äganderätter.

Utgångspris 5 695 000 kr

Fakta
Fastighetsbeteckning
Funäsdalen 8:378
Rum
6
Sovrum
4
Boarea/biarea
143.0 kvm / 25.0 kvm
Tomtarea
87.0 kvm
Byggnadstyp
Radhus

Fritid, deltid eller alltid? Funäsdalen är populärt, både som åretruntboende och som semesterboende. Funäsdalen är en levande by året om med en växande befolkning samt ett fantastiskt utbud av restauranger och butiker. Husen har ett centralt läge, med gångavstånd till både skola och affärer och skidbacken i ryggen.

Just nu byggs 11 bostäder i två etapper nära Funäsdalssjöns östra kant. Husen byggs som åretruntboenden med hög standard och säljs som äganderätter. Med det sagt funkar de utmärkt både för dig som vill bo här permanent och för dig som vill kunna komma och gå. Och dessutom hyra ut när du inte är på plats. När du tittar ut ser du blått vatten så långt ögat når. Lyfter du blicken ser du fjället Skarvarna, där högsta toppen når ända upp till 1260 meter över havet. Tystnaden syns inte men den finns där. När du öppnar altandörren eller när du tar morgondoppet i sjön. Här bor du och lever du bra. Ja inte bara du utan hela familjen.

Husen i Funäsdalen kommer inte bara bli vackra och välkonstruerade, de är utformade med praktiska detaljer som kan förenkla och förgylla livsstilen här uppe. Till exempel har alla hus en egen aktivitetsentré med extra ytor som ger plats till pjäxor, skidor och tjocka ytterkläder. Garaget har designats för att ge plats till en lite större bil med takbox och möjlighet att använda garagetaket som förvaringsutrymme. Självklart med elbilsladdare.

Projektet omfattar tre fristående byggnadskroppar med totalt 11 st bostäder fördelade utmed en västsluttning ned mot Funäsdalssjön. Hus 1 och hus 2 innehåller vardera 4 st bostäder medan hus 3 innehåller 3 st bostäder. Samtliga hus består av suterrängplan, entréplan, övre plan samt vindsplan- alltså 3 1/2 plans hus uppförda i radhusform. I första etappen säljs bostäderna i hus 1 och 3, andra etappen består av bostäderna i hus 2. Den första etappen beräknas vara inflyttningsklar till vintern 2024/2025. För att se vilka bostäder som finns klicka på länken Bostadsväljare i annonsen. Passa på att säkra just ert drömläge redan nu!

Vi människor längtar ofta någon annanstans. Bort. Iväg. Till andra sidan gatan eller andra sidan jorden. Men resan till Funäsdalen handlar inte om att komma bort. Den handlar om att komma ett stort steg närmare en väldigt speciell människa. Dig själv.

Välkommen till Funäsdalen och Morgondoppet!

FAKTA
  • Antal rum 6 rum varav sovrum 4
  • Hustyp Radhus
  • Boarea/biarea 143 kvm / 25 kvm
  • Tomtarea 87 kvm
Byggnad
Byggnadsår
2022
Byggnadstyp
Radhus
Fasad
Trä
Fönster
3-glas
Tak
Trä
Grund
Gjuten platta
Uppvärmning
Fjärrvärme alt frånluftsvärmepump, vattenburen golvvärme i alla rum
Ventilation
Mekanisk (endast frånluft)
Energideklaration
Status
Behövs inte
VATTEN & AVLOPP

Kommunalt vatten och avlopp


För fjälläventyr oavsett om man bor permanent eller bara ibland krävs praktiska funktioner och smarta lösningar. Bostäderna i Morgondoppet har en välplanerad aktivitetsentré i suterrängplanet där det även finns en härlig relaxyta med bastu, isvak/bad och WC.

En trappa upp är sällskapsytorna med vardagsrum som har ett härligt scenfönster och utgång till balkong. Här finns även kök med matplats och en anpassningsbar del som antingen kan bli tvättstuga eller extra köksdel, sk "back-kitchen". Detta våningsplan har också en entré i markplan med avhängningsyta och ett badrum med dusch.

Plan 2 inrymmer sovdel med tre sovrum samt ett allrum, perfekt för TV mys i soffan. I anslutning till sovrummen finns ytterligare ett badrum.

Högst upp i byggnaden finns slutligen vindsloftet med ett separat master bedroom och takkupa. Här finns även kattvindar till förvaring.

Rum
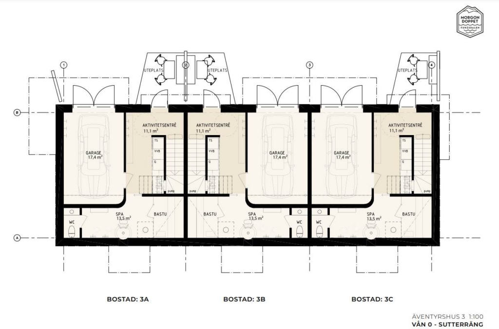
Garage, vån 0
I suterrängplanet finns ett garage med plats till en lite större bil med takbox och möjlighet att använda garagetaket som förvaringsutrymme. Uttag för elbilsladdare finns.
Aktivitetsentré, vån 0
Praktisk och smart planerad entré som nås både utifrån och via garaget intill. Här finns gott om utrymme att ta på och av sig friluftsutrustning. Hallen har torkskåp och garderob och levereras med garderobsinredning, hatthylla, klädstång och skotork. Klinker på golv, KL träskivor på väggar och i tak.
Spa/bastu/WC, vån 0
Innanför entrén ligger en lyxig spa avdelning med relax, dusch, bastu och WC. Isvak/bad finns som tillval. Vägghängd WC, handdukskrokar samt handduksvärmare på vägg. Takspotlights samt dold belysning i bastu. Bastun har mörka trälameller. Våtutrymmet har klinker på golv och väggar samt målat tak.
Hall/entré, vån 1
Från markplan finns ytterligare en ingång med hall som har klädstång, hatthylla, skotork och garderob. Klinker på golv, KL träskivor på väggar och i tak. Spotlights i tak.
Badrum, vån 1
Intill hallen finns ett badrum med tvättställ, WC, dusch samt garderob/städskåp. Handduksvärmare. Klinker på golv och väggar samt KL träskivor i tak.
Vardagsrum, vån 1
Ett härligt rum för umgänge och avkoppling med maffigt scenfönster där man kan krypa upp och njuta av utsikten. Här finns även balkongdörr till balkongen med vackra fjällvyer. Vardagsrum och kök bildar tillsammans en öppen yta för familj och vänner med matplats i mitten. Parkettgolv, KL träskivor på väggar och i tak.
Kök, vån 1
Äventyrshusen i Funäsdalen är ritade med två alternativa köksupplägg. Den ena varianten delar upp köket i ett ”back-kitchen” och ”front-kitchen”. I ditt back-kitchen kan du göra grovjobbet, med möjlighet att stänga dörren och gömma undan stöket vid behov. I ditt front-kitchen kan du fokusera på finliret och snacket med gästerna eller familjen. Det andra köksuppläget är ett mer traditionellt kök som löper längs med ena väggen. Den maskinella utrustningen består av diskmaskin, spis, mikro, kyl, frys och köksfläkt. Parkettgolv, KL träskivor på väggar och i tak.
Grovkök/tvättstuga, vån 1
Innanför köket finns ett anpassningsbart utrymme som antingen kan bli en praktisk förlängning av befintligt kök med extra ytor för matberedning som även kan döljas smidigt med skjutdörr mot matplatsen. Vill man hellre ha extra yta för tvätt finns möjlighet att inreda rummet till tvättstuga. Klinker på golv, KL träskivor på vägg och i tak. Bänkskiva i rostfritt.
TV-rum, vån 2
Från vardagsrummet leder en trappa upp till andra våningen där det finns ett TV rum med öppet i tak upp till vindsloftet. Heltäckningsmatta, KL träskivor på vägg samt mörkbetsade trälameller med ljudisolering i tak.
Sovum 1-3, vån 2
Tre inbjudande sovrum, två lite mindre med plats för våningssäng/enkelsäng samt ett lite större med plats för dubbelsäng. Fönster samt garderober i alla rum. Heltäckningsmatta, KL träskivor på väggar och i tak.
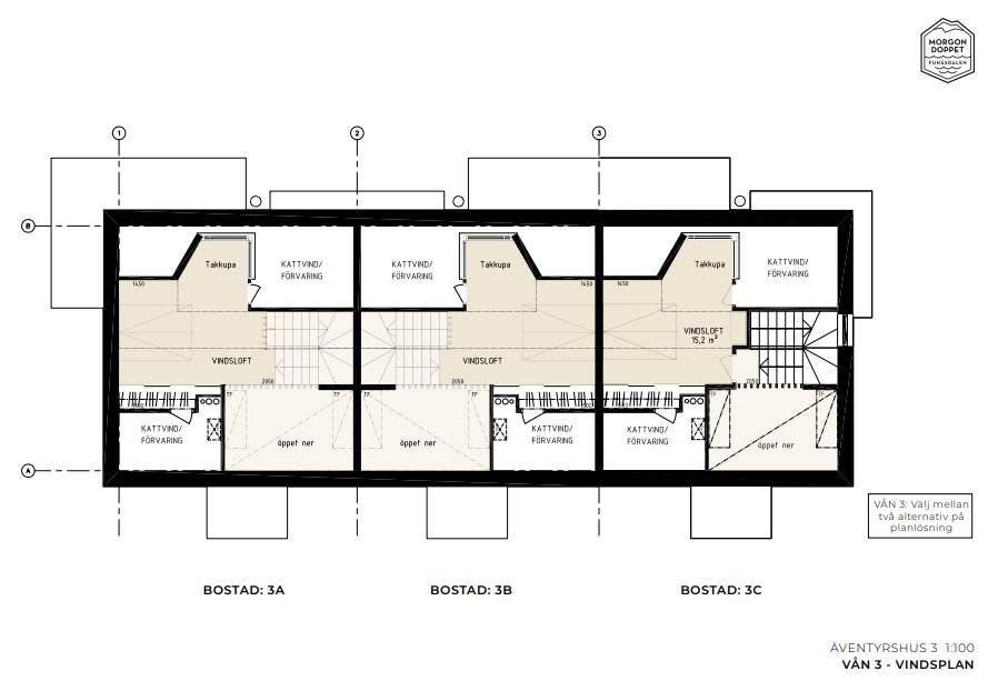
Sovrum 4, vindsloft
Högst upp finns ett härligt vindsloft med takkupa och öppet ner till Tv rummet. Vindsloftet är på 15-16 kvm och kan inredas som sovrum, kontor eller kanske ateljé. Här finns även två kattvindar till förvaring. Heltäckningsmatta, KL träskivor på väggar och trälameller med ljudisolering i tak.
Kattvind, vindsloft
Från loftet nås två kattvindar, en på vardera sida. Golvspånskiva på golv, KL träskivor på väggar och i tak.
Övrigt
Varje bostad har generösa balkonger i sydästläge och stora fönster och fönsterpartier med utsikt över sjön och de omgivande fjällen. Till varje bostad hör också en uteplats i suterrängnivå i sydvästläge.

Till varje bostad finns en parkeringsplats i direkt anslutning till respektive byggnadskropp, förutom den garageplats som finns i suterrängdelen.

En gemensam miljöstation avsett för samtliga bostäder finns vid infarten till området.
Driftskostnader
Då husen är under uppförande går det inte att specificera kostnaderna än. Det kommer vara egna abonnemang per fastighet för el, VA och fiber. Kostnader för sophämtning och vägskötsel som kommer hanteras
och faktureras via gemensamhetsanläggningen .
Möbelpaket
Oavsett om du vill bo permanent i ditt äventyrshus eller bara under delar av året, så är inredningen pricken över i:et. Med rätt inredning tar du ditt radhus till nästa nivå, och skapar en mysig oas mitt i de jämtländska fjällen. I samarbete med inredningsföretaget Permia finns färdiga möbelpaket, nyfiken? - se mer under dokument i annonsen. Offert finns på projektets hemsida: https://www.morgondoppet.se/funasdalen/mobelpaket/
Inskrivningar
Rättigheter / Gemensamhetsanläggningar
Gemensamhetsanläggning: Härjedalen Funäsdalen GA:185, Samfällighet: Härjedalen Funäsdalen S:72
Avtalsservitut Vatten- Och Avloppsledning(2 st)
Last: Avtalsservitut Vatten-Och Avloppsledning, 2361IM-14/615.1
Last: Avtalsservitut Vatten-Och Avloppsledning, 2361IM-14/619.1
Planbestämmelser
Detaljplan (2011-12-08)
Allmänt om området
Funäsdalen är centralorten för Skandinaviens största skidområde. På ett och samma liftkort kan du variera din skidåkning på många sätt genom att besöka en och var av Funäsfjällens alla liftanläggningar Funäsdalsberget, Tänndalen, Ramundberget, Tännäskröket och Kappruet.

I december 2014 invigdes Funäsgondolen!
Från bykärnan åker man numera goldol upp till toppen av Funäsdalsberget och skidor ända ner till byn, eller vidare mot Kåvan dalstation. En mäktig upplevelse ur "helikopterperspektiv" både vinter- och sommartid då man byter ut skidorna mot vandringskängorna eller cykeln. På Toppstugan finns lunch och fika och vissa kvällar med kvällsskidåkning även middag.

Funäsfjällen är också paradiset för längdåkning i Nordic Ski systemet med 300 km preparerade skidspår. Ett unikt spårsystem som sammanlänkar hela området!

I Funäsfjällen finns 450 km skoterleder, varav 150 km går över högfjället i ett av Sveriges vackraste fjällområden. De breda skoterlederna prepareras kontinuerligt av pistmaskiner för att hålla toppklass.

Sommartid erbjuder området ett stort utbud utav friluftsaktiviteter. Här gör du enkelt härliga fjällvandringar med storslagen utsikt, cyklar mountainbike, paddlar kanot/kajak, plockar bär och svamp eller bara njuter av årstiderna! Sommartid såväl som vintertid finns det goda förutsättningar också för fiske, både i vattendrag och i sjöar.

Läs mer på www.funasfjallen.se för att bli inspirerad av olika aktivitet och sevärdheter!
Närservice

I Funäsdalen finns det mesta man behöver som t.ex. välsorterade butiker, hälsocentral, apotek, museum, turistbyrå, bibliotek, systembolag, taxi, restauranger och pubar m.m.

PLANRITNING
Dags för ditt livs äventyr i Funäsdalen?
Dags för ditt livs äventyr i Funäsdalen?
Dags för ditt livs äventyr i Funäsdalen?
Dags för ditt livs äventyr i Funäsdalen?

ANSVARIG MÄKLARE











    KARTA
    FASTIGHETER TILL SALU I SAMMA OMRÅDE